Sold

51b Chevrolet AvenuePortsmouth, NH 03801Sale Price: $1,674,900

  • Sale Price: $1,674,900
  • 208 Days Since Sale
$
$
%
$/month over payments
Federal 30-year interest rate: 6.24% last updated on Nov 13, 2025
* All Figures are estimates. Check with your bank or proposed mortgage company for actual interest rates.
This product uses the FRED® API but is not endorsed or certified by the Federal Reserve Bank of St. Louis.
  • $1,674,900Sale Price
  • 04/25/2025Sale Date
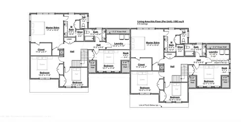
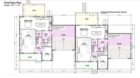
  • 4Bedrooms
  • 3Bathrooms
  • 2,728Square Feet
Immediate Occupancy! The Grove|West End is a luxury, maintenance free condo offering +/-2728 sq ft of finished living space while within walking distance of the heart of downtown Portsmouth and only steps from multiple restaurants, shopping and entertainment! This gorgeous home offers a versatile open concept floor plan perfect for today's lifestyle, living room complete with cozy gas fireplace shiplap to ceiling with floating wood mantle and 9' ceilings. First floor study/office filled with natural light. Luxury Kitchen with expansive island and walk in pantry. Second floor offers spacious Primary En Suite complete with walk in closet, custom tiled shower with glass door and double vanity. Three other spacious bedrooms, full bath and convenient designated laundry. Finished 11' x 12' bonus room above the garage perfect for playroom, gym, family room or another bedroom. Loaded with upscale upgrades, generous allowances and quality that you would expect from the prominent four-time winning “Best of Seacoast”, Copley Properties LLC. The perfect location to work and play, commuter routes are close by and Portland and Boston only an hour by car.
Listed by Carrie Blair of The Gove Group Real Estate,LLC

Sold by EXP Realty

Listing Tools

Property Details

Interior Features

Exterior Features

Utilities and Appliances

Community

Broker Reciprocity 

Copyright 2025 PrimeMLS, Inc. All rights reserved. This information is deemed reliable, but not guaranteed. The data relating to real estate displayed on this display comes in part from the IDX Program of PrimeMLS. The information being provided is for consumers’ personal, non-commercial use and may not be used for any purpose other than to identify prospective properties consumers may be interested in purchasing. Data last updated November 18, 2025 8:23 PM EST

 

Hi there! How can we help you?

Contact us using the form below or give us a call.

Send Us A Message:

I agree to receive marketing and customer service calls and text messages from Mary Beth Hixon. To opt out, you can reply 'stop' at any time or click the unsubscribe link in the emails. Consent is not a condition of purchase. Msg/data rates may apply. Msg frequency varies. Privacy Policy.

Do not fill in this field:

This site is protected by reCAPTCHA and the Google Privacy Policy and Terms of Service apply.

Hi there! How can we help you?

Contact us using the form below or give us a call.

Send Us A Message:

Do not fill in this field:

This site is protected by reCAPTCHA and the Google Privacy Policy and Terms of Service apply.

Hi there! How can we help you?

Contact us using the form below or give us a call.

Send Us A Message:

Do not fill in this field:

This site is protected by reCAPTCHA and the Google Privacy Policy and Terms of Service apply.

Do not fill in this field:

This site is protected by reCAPTCHA and the Google Privacy Policy and Terms of Service apply.

Do not fill in this field:

This site is protected by reCAPTCHA and the Google Privacy Policy and Terms of Service apply.

Do not fill in this field:

This site is protected by reCAPTCHA and the Google Privacy Policy and Terms of Service apply.

$

Do not fill in this field:

This site is protected by reCAPTCHA and the Google Privacy Policy and Terms of Service apply.

Map Location

ocean sunset background ocean sunset background

Map Location

Driving Directions

ocean sunset background

Do not fill in this field:

I agree to receive marketing and customer service calls and text messages from Mary Beth Hixon. To opt out, you can reply 'stop' at any time or click the unsubscribe link in the emails. Consent is not a condition of purchase. Msg/data rates may apply. Msg frequency varies. Privacy Policy.

This site is protected by reCAPTCHA and the Google Privacy Policy and Terms of Service apply.

Schedule A Visit

Schedule a Visit

I agree to receive marketing and customer service calls and text messages from Mary Beth Hixon. To opt out, you can reply 'stop' at any time or click the unsubscribe link in the emails. Consent is not a condition of purchase. Msg/data rates may apply. Msg frequency varies. Privacy Policy.

This site is protected by reCAPTCHA and the Google Privacy Policy and Terms of Service apply.